Проект дома «Дом МТ171»

-
🏠 Каркасная постройка :Базовый: 5 003 000 ₽
Оптимальный: 5 633 000 ₽ -
🏠 Домокомплект из СИП :Базовый: 2 380 000 ₽
Оптимальный: 2 893 000 ₽ -
🏠 Постройка из СИП :Базовый: 4 040 000 ₽
Оптимальный: 4 558 000 ₽
Описание
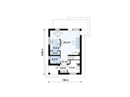
Компактный и функциональный дом с современным дизайном. Просторная гостиная с выходом на террасу. Уютная кухня и уютные спальни создают комфортное пространство для всей семьи. Отличный выбор для тех, кто ценит практичность и минимализм в каждом элементе.
Характеристики
Проекты компании «ПСК МЯТА»
Компания ПСК МЯТА предлагает готовые и индивидуальные проекты для тех, кто ценит качество, надёжность и современный подход к строительству.
-
Строительство домов — мы проектируем и возводим энергоэффективные загородные дома для постоянного проживания и дачи. Все проекты разработаны с учётом современных технологий и норм, чтобы обеспечить комфорт и долговечность.
-
Модульные дома под ключ — доступное и быстрое решение для тех, кто хочет получить готовое жильё в короткие сроки. Модульные конструкции отличаются мобильностью, функциональностью и стильным дизайном.
-
Коммерческая недвижимость — проектируем и строим здания для бизнеса: офисы, магазины, кафе и другие объекты, соответствующие современным стандартам.
-
Проектирование гаражей — предлагаем практичные и удобные решения для хранения автомобилей, с возможностью интеграции дополнительных помещений для хозяйственных нужд.
Каждый проект от ПСК МЯТА сочетает в себе продуманную архитектуру, высокое качество материалов и доступную стоимость. Мы создаём объекты, которые будут радовать своих владельцев долгие годы.
ПСК МЯТА — строительство домов, модульные дома под ключ, коммерческая недвижимость и проектирование гаражей в вашем регионе.




