336-1
337-1
339-1
340-1

Проект дома «Дом МТ122»

  • 🏠 Каркасная постройка :
    Базовый: 4 233 000 ₽
    Оптимальный: 4 373 000 ₽
  • 🏠 Домокомплект из СИП :
    Базовый: 1 869 000 ₽
    Оптимальный: 2 176 000 ₽
  • 🏠 Постройка из СИП :
    Базовый: 3 252 000 ₽
    Оптимальный: 3 559 000 ₽
Цена от: 
1  869  000 руб

Описание

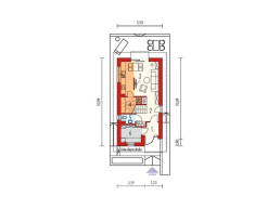
Двухэтажный дом для семьи из 2-3 человек.

Характеристики

Площадь застройки - 90.93 м²
Этажность - 2
Количество комнат - 3

 

Проекты компании «ПСК МЯТА»

Компания ПСК МЯТА предлагает готовые и индивидуальные проекты для тех, кто ценит качество, надёжность и современный подход к строительству.

  • Строительство домов — мы проектируем и возводим энергоэффективные загородные дома для постоянного проживания и дачи. Все проекты разработаны с учётом современных технологий и норм, чтобы обеспечить комфорт и долговечность.

  • Модульные дома под ключ — доступное и быстрое решение для тех, кто хочет получить готовое жильё в короткие сроки. Модульные конструкции отличаются мобильностью, функциональностью и стильным дизайном.

  • Коммерческая недвижимость — проектируем и строим здания для бизнеса: офисы, магазины, кафе и другие объекты, соответствующие современным стандартам.

  • Проектирование гаражей — предлагаем практичные и удобные решения для хранения автомобилей, с возможностью интеграции дополнительных помещений для хозяйственных нужд.

Каждый проект от ПСК МЯТА сочетает в себе продуманную архитектуру, высокое качество материалов и доступную стоимость. Мы создаём объекты, которые будут радовать своих владельцев долгие годы.

ПСК МЯТА — строительство домов, модульные дома под ключ, коммерческая недвижимость и проектирование гаражей в вашем регионе.

Copyright © 2025 ООО «ПСК Мята»

Плавающие иконки
WhatsApp Telegram VK MAX