Проект дома « Дом МT236»

-
🏠 Каркасная постройка :Базовый: 6 910 000 ₽
Оптимальный: 7 837 000 ₽ -
🏠 Домокомплект из СИП :Базовый: 2 846 000 ₽
Оптимальный: 3 616 000 ₽ -
🏠 Постройка из СИП :Базовый: 5 618 000 ₽
Оптимальный: 6 392 000 ₽
Описание
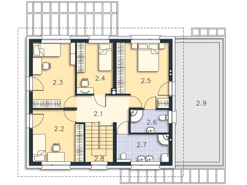
Удобный энергосберегающий дом. Первый этаж: гостиная с камином, кухня с кладовой, кабинет, ванная и туалет. Второй этаж: четыре спальни, две ванные и терраса над гаражом. Котельная за гаражом имеет выход на улицу, а в гараж можно попасть из дома. Садовые дорожки украшены беседкой защищающей от солнца.
Характеристики
Проекты компании «ПСК МЯТА»
Компания ПСК МЯТА предлагает готовые и индивидуальные проекты для тех, кто ценит качество, надёжность и современный подход к строительству.
-
Строительство домов — мы проектируем и возводим энергоэффективные загородные дома для постоянного проживания и дачи. Все проекты разработаны с учётом современных технологий и норм, чтобы обеспечить комфорт и долговечность.
-
Модульные дома под ключ — доступное и быстрое решение для тех, кто хочет получить готовое жильё в короткие сроки. Модульные конструкции отличаются мобильностью, функциональностью и стильным дизайном.
-
Коммерческая недвижимость — проектируем и строим здания для бизнеса: офисы, магазины, кафе и другие объекты, соответствующие современным стандартам.
-
Проектирование гаражей — предлагаем практичные и удобные решения для хранения автомобилей, с возможностью интеграции дополнительных помещений для хозяйственных нужд.
Каждый проект от ПСК МЯТА сочетает в себе продуманную архитектуру, высокое качество материалов и доступную стоимость. Мы создаём объекты, которые будут радовать своих владельцев долгие годы.
ПСК МЯТА — строительство домов, модульные дома под ключ, коммерческая недвижимость и проектирование гаражей в вашем регионе.




