Проект дома «Дом МТ150»

-
🏠 Домокомплект из СИП :Базовый: 1 978 000 ₽
Оптимальный: 2 354 000 ₽ -
🏠 Каркасная постройка :Базовый: 4 579 000 ₽
Оптимальный: 5 117 000 ₽ -
🏠 Постройка из СИП :Базовый: 3 642 000 ₽
Оптимальный: 4 022 000 ₽
Описание
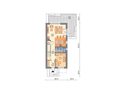
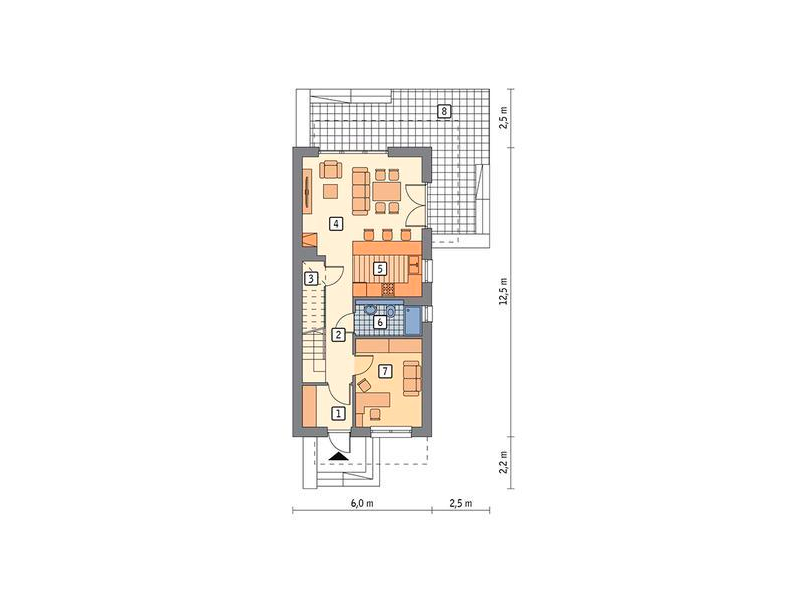
Дом идеально подходит для узких участков, комфортен для семьи из пяти человек. Первый этаж: гостиная с открытой кухней, ванная, дополнительная комната (кабинет/спальня), камин, терраса, лестница и кладовая. Второй этаж: три спальни с балконами, ванная, котельная/прачечная. Фасад с деревянными панелями и штукатуркой.
Характеристики
Площадь застройки 150м²
Этажность 2
Количество комнат 5
Индивидуальный заказ
Мы всегда готовы разработать индивидуальный проект дома, соответствующий вашим желаниям. Наши архитекторы и дизайнеры превратят ваши идеи в уникальный и функциональный дизайн.
Мы учитываем все предпочтения, при заключении договора, индивидуальный проект - бесплатно. Создайте свой идеальный дом!





